PDF Version (1.4 MB)


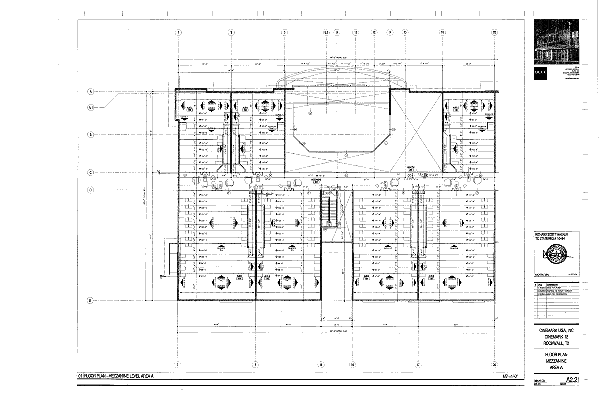
Floor plan for Cinemark 12, Rockwall, Texas, Mezzanine Area A.


CLOSE WINDOW


Return to Consent Order

Cases & Matters by ADA Title Coverage | Legal Documents by Type & Date | archive.ADA.gov Home Page